Login

Planung

Erschließung ab Herbst 2025
Baustart ab Frühjahr 2027

Grundstücke mit Flächen zwischen:

250 m² - 4.200 m²

Grundstücke für:

Kleinsthäuser
Einfamilien- und Doppelhäuser
Reihen- und Mehrfamilienhäuser

Lage

Satrup - zwischen Ostsee und Rapsblüte

Mitten in der idyllischen Landschaft Angelns gelegen, vereint Satrup ländlichen Charme mit moderner Lebensqualität. Nur 20 Minuten von der Ostsee entfernt macht die Nähe zur Küste den Alltag hier besonders lebenswert: Morgens zur Arbeit, nachmittags an den Strand.


Ob gute Anbindung an Flensburg und Schleswig, ausgezeichnete Schulen, umfassende ärztliche Versorgung oder vielfältige Freizeitangebote: Satrup ist ein Ort zum Wohlfühlen für Jung und Alt. Historische Wurzeln, eine lebendige Dorfgemeinschaft und beste Wohnbedingungen machen Satrup zum perfekten Lebensmittelpunkt.

Lageplan Satrup in Mittelangeln, Nähe Ostsee, Schleswig und Flensburg.
Geplante Gemeinschaftsfläche im Baugebiet Elkjär: Uferpromenade am See mit Spazierweg und Wohnhäusern im Hintergrund.
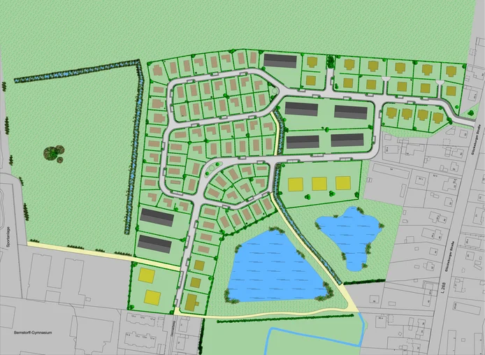
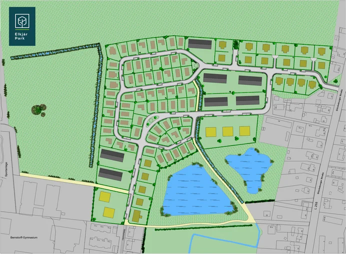
Übersicht des Baugebiets Elkjär in Satrup: Das Wohnquartier zeigt Einfamilienhäuser, Tiny Houses, Mehrfamilienhäuser und Doppelhaushälften und eine Grünfläche mit See.
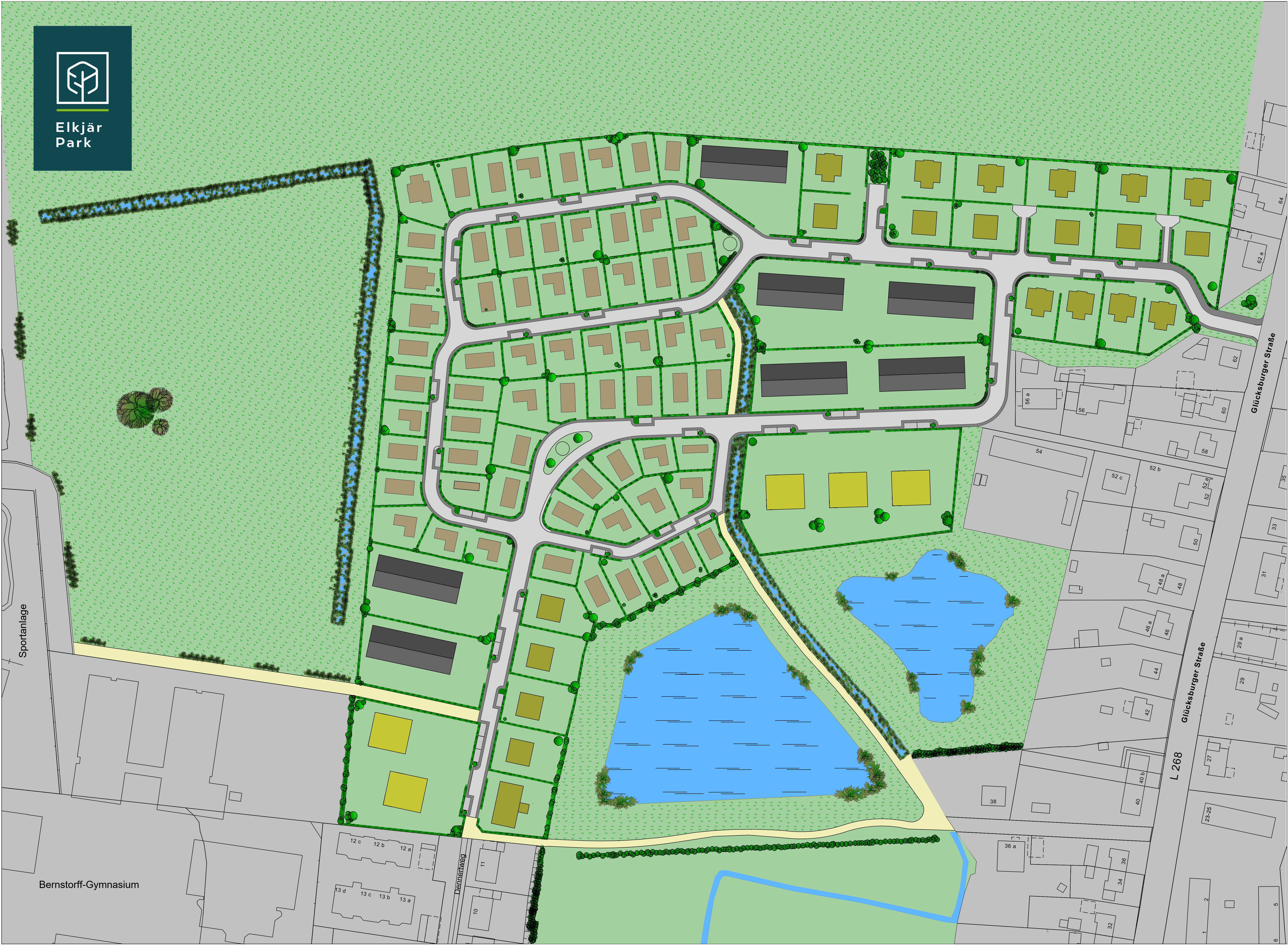
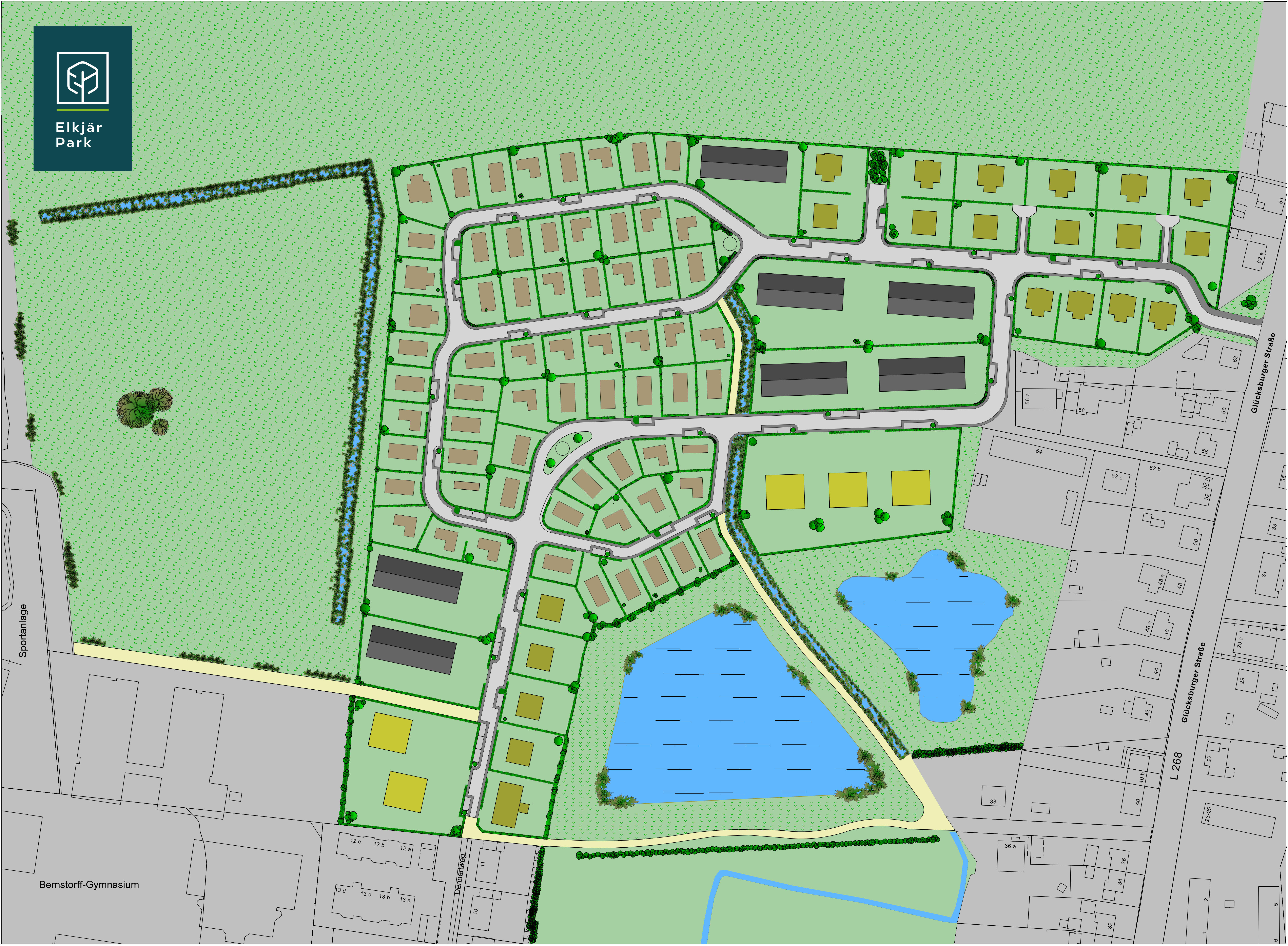
Lageplan des Baugebiets Elkjär in Satrup: Karte zeigt die Position des Quartiers an der Glücksburger Straße nahe der Flensburger Straße.

Baugebiet Elkjär

Ein Baugebiet für alle,
die mehr erwarten

In Satrup, dem lebendigen Herzen der Gemeinde Mittelangeln, entsteht ein neues Baugebiet mit Zukunft. Hier wächst ein Wohnquartier, das mehr bietet als nur ein Dach über dem Kopf: nachhaltiges Bauen, modernes Wohnen und echte Lebensqualität.

Ganz gleich, ob Sie jung oder alt sind, ob Sie als Familie, Paar oder Einzelperson Ihren Lebensmittelpunkt suchen, in Satrup finden Sie Ihren Platz. Das neue Wohngebiet lädt Sie ein zu einem Leben in Gemeinschaft, mit Raum für neue Ideen, gegenseitige Unterstützung und ein bewusstes Miteinander. Hier entsteht nicht nur Wohnraum, sondern ein Ort, an dem Sie sich wirklich zu Hause fühlen können.

 

Möchten Sie mehr erfahren?
Fordern Sie jetzt unverbindlich das Exposé an und sichern Sie sich frühzeitig alle Informationen zum neuen Wohnquartier in Satrup.

Jetzt Exposé anfordern
Kompakte Wohnformen mit architektonischem Anspruch
Nachhaltige Lebensweise
in naturnaher Umgebung
Teil einer lebendigen, gut angebundenen Gemeinde
Nur 20 Minuten zur Ostsee:
Wohnen, wo andere Urlaub machen
Neugierig geworden?
Wir senden Ihnen gern
ausführliches Infomaterial:
Jetzt Exposé anfordern

Vertriebspartner

Ihre Ansprechpartner

Sonja Jenderny
Immobilienberaterin
zertifizierte Modernisierungsberaterin
Jürgen Sönnichsen
Abteilungsleiter Immobiliencenter